Bản Vẽ Cad Phòng xông hơi Chi tiết và đầy đủ nhất cho bạn nếu bạn đang muốn thi công, thiết kế phòng xông hơi sao cho chính xác và chuẩn nhất. Bài viết này Hóa Chất Môi Trường sẽ giới thiệu cho bạn một số mẫu bản vẽ cad phòng xông hơi đẹp và chuyên nghiệp, cùng với những lưu ý quan trọng khi thiết kế phòng xông hơi. Hãy cùng tham khảo nhé!
Các mẫu bản vẽ cad phòng xông hơi tham khảo cho bạn
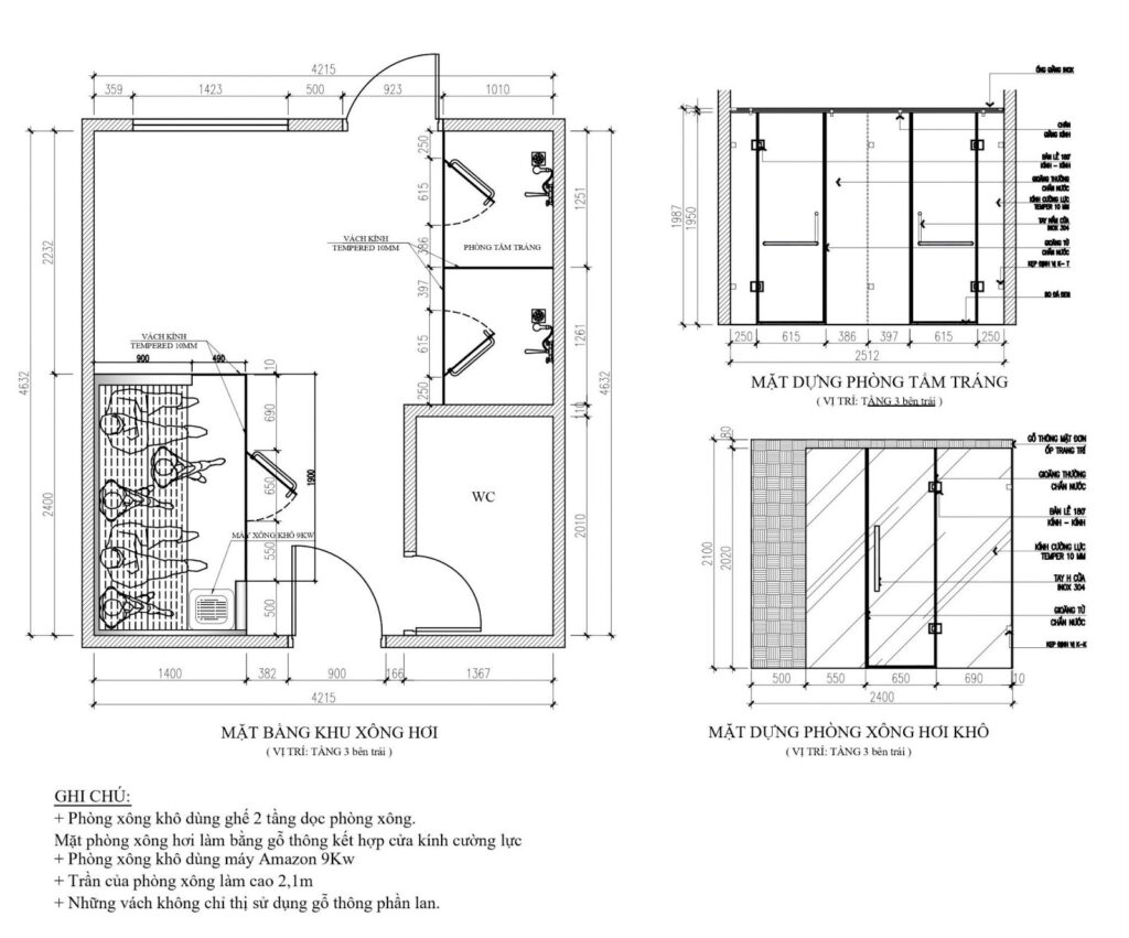
Bản vẽ CAD phòng xông hơi khô:

là bản vẽ đầu tiên mà Hóa Chất Môi Trường muốn gửi đến quý khách hàng. Được thiết kế để phục vụ trong môi trường phòng Gym, bản vẽ này tận dụng không gian có sẵn với mọi phòng đều được trang bị nhà vệ sinh, cho phép tận dụng linh hoạt bất kỳ diện tích nào trong phòng.
Sau khi lắng nghe mọi yêu cầu từ khách hàng, Hóa Chất Môi Trường không ngừng phân tích, xây dựng nhiều kế hoạch và chọn vị trí lắp đặt phòng xông hơi tối ưu nhất cho 4 – 5 người sử dụng. Đồng thời, để tiết kiệm chi phí, Hóa Chất Môi Trường đã lựa chọn sử dụng kính cường lực để xây dựng phòng xông.
Kính cường lực không chỉ đảm bảo giữ nhiệt và ẩm tốt mà còn tạo ra không gian xông hơi thoáng đãng, tinh tế và sang trọng. Để mở rộng không gian, Hóa Chất Môi Trường tận dụng các vị trí ở góc và kết nối giữa phòng tắm và phòng xông hơi.
Bản vẽ CAD phòng xông hơi cho phòng từ 1 – 2 người:

hoàn hảo cho gia đình và kết hợp với phòng tắm tiện lợi. Với sự so sánh về giá, chất lượng và tính năng, mẫu bản vẽ này thực sự là lựa chọn hoàn hảo cho mọi gia đình hiện đại. Hóa Chất Môi Trường chọn trần thạch cao, kính cường lực và ốp gỗ thiết sam Canada cho trần, sàn và vách phòng xông. Đồng thời, việc đi dây điện âm tường được thực hiện để tăng tính thẩm mỹ và phóng khoáng cho không gian gia đình.
Bản vẽ CAD phòng xông ướt và khô:

tạo ra một tiệm spa mini trong không gian ấm cúng tại nhà. Hóa Chất Môi Trường chia không gian xông hơi thành 2 phần phù hợp cho 2 người sử dụng cùng lúc. Đây cũng là ý tưởng tối ưu diện tích sống cho cả gia đình. Bằng cách thiết kế kính cường lực trong suốt, Hóa Chất Môi Trường không chỉ che chắn mà còn giữ ẩm, nhiệt và ngăn chặn thất thoát hơi nước ra ngoài phòng. Phần phòng xông hơi khô sử dụng gỗ thiết sam Canada và gỗ thông, mang đến hương thơm dịu nhẹ và chịu nhiệt tốt lên đến 110oC.
Bản vẽ CAD phòng xông hơi dành cho Spa:

là lựa chọn của Hóa Chất Môi Trường cho các chủ đầu tư spa, với đầy đủ phòng xông hơi khô – ướt cho 5 – 10 người xông hơi cùng lúc. Chủ đầu tư đã chỉ ra ý kiến của mình khi dành không gian cho 5 người trong một khu vực xông hơi. Dựa trên ý tưởng và mặt bằng hiện tại, Hóa Chất Môi Trường đã mở rộng thiết kế để phục vụ nhiều người xông hơi cùng lúc, sử dụng máy xông hơi 12KW để đảm bảo nhiệt đều và không gây cảm giác quá nóng. Mặt trước phòng xông hơi vẫn sử dụng kính cường lực 10mm để giảm chi phí nhưng vẫn giữ được vẻ đẹp sang trọng của phòng Spa.
Đây là một số bản vẽ phòng xông hơi do Hóa Chất Môi Trường thiết kế để quý khách tham khảo. Để có thiết kế phòng xông hơi độc đáo, phù hợp với nhu cầu cụ thể của bạn, hãy liên hệ trực tiếp với Hóa Chất Môi Trường – đội ngũ thiết kế tài năng sẵn sàng hỗ trợ.
Hướng dẫn cách vẽ bản vẽ cad xông hơi chi tiết

- Lựa chọn phần mềm CAD phù hợp: Bạn có thể sử dụng các phần mềm CAD phổ biến như AutoCAD, SketchUp, Revit, SolidWorks, etc. để vẽ bản vẽ cad phòng xông hơi. Mỗi phần mềm có những ưu và nhược điểm khác nhau, bạn nên chọn phần mềm mà bạn quen thuộc và phù hợp với nhu cầu của bạn.
- Tạo một khuôn mẫu: Để đảm bảo tính đồng nhất trong bản vẽ CAD, bạn nên tạo một khuôn mẫu với các chi tiết căn bản của phòng xông hơi như cửa, giá để đồ, thiết bị, tường và sàn.
- Sử dụng các công cụ phần mềm CAD: Để vẽ bản vẽ CAD, bạn cần sử dụng các công cụ phần mềm CAD như vẽ đường, vẽ hình, vẽ khối, vẽ mặt cắt, vẽ chi tiết, vẽ kích thước, vẽ màu sắc, vẽ vật liệu, vẽ ánh sáng, vẽ bóng, vẽ hiệu ứng, etc. Bạn nên tìm hiểu cách sử dụng các công cụ này trước khi bắt đầu vẽ.
- Vẽ bản vẽ CAD phòng xông hơi chi tiết: Sau khi có khuôn mẫu và sử dụng các công cụ phần mềm CAD, bạn có thể bắt đầu vẽ bản vẽ CAD phòng xông hơi chi tiết theo ý tưởng và thiết kế của bạn. Bạn nên chú ý đến các yếu tố như kích thước, hình dạng, vị trí, hướng, chức năng, độ an toàn, độ thẩm mỹ, etc. của phòng xông hơi. Bạn cũng nên vẽ các chi tiết như ren, ốc vít, bulong, etc. để bản vẽ CAD phòng xông hơi trở nên chính xác và đầy đủ
- Kiểm tra và chỉnh sửa bản vẽ CAD phòng xông hơi: Sau khi hoàn thành bản vẽ CAD phòng xông hơi, bạn nên kiểm tra và chỉnh sửa bản vẽ để đảm bảo không có lỗi sai sót, thiếu sót, mâu thuẫn, etc. Bạn nên so sánh bản vẽ CAD phòng xông hơi với bản vẽ thiết kế ban đầu và yêu cầu của khách hàng để đảm bảo bản vẽ CAD phòng xông hơi phù hợp và hài lòng. Bạn cũng nên in ấn và lưu trữ bản vẽ CAD phòng xông hơi để sử dụng khi cần thiết.
Những Lưu ý khi vẽ cad phòng xông hơi

Phòng xông hơi là một không gian được thiết kế để tạo ra hơi nước nóng ẩm, giúp thư giãn cơ thể và tinh thần. Khi vẽ cad phòng xông hơi, bạn cần lưu ý những điểm sau:
- Bạn cần xác định kích thước, hình dạng, vị trí và hướng của phòng xông hơi, sao cho phù hợp với diện tích, kiến trúc và mục đích sử dụng của không gian.
- Bạn cần chọn loại vật liệu chịu nhiệt, chống ẩm, chống trơn và dễ lau chùi cho sàn, tường và trần của phòng xông hơi. Một số vật liệu phổ biến là gạch, đá, gỗ, sứ, thủy tinh, nhựa, v.v.
- Bạn cần lựa chọn hệ thống phát hơi, bao gồm máy phát hơi, ống dẫn hơi, van điều khiển và đầu phun hơi. Bạn cần đảm bảo rằng hệ thống phát hơi có công suất, áp suất và nhiệt độ phù hợp với kích thước và dung tích của phòng xông hơi.
- Bạn cần thiết kế hệ thống thông gió, bao gồm cửa, cửa sổ, quạt và ống thoát khí. Bạn cần đảm bảo rằng hệ thống thông gió có khả năng duy trì độ ẩm, khử mùi và ngăn ngừa nấm mốc trong phòng xông hơi.
- Bạn cần bố trí các thiết bị và đồ nội thất cho phòng xông hơi, bao gồm ghế, băng, gối, đèn, loa, tủ, kệ, v.v… Bạn cần chọn các thiết bị và đồ nội thất có chất liệu, màu sắc và kiểu dáng hài hòa với không gian và tạo cảm giác thoải mái cho người sử dụng.
Quy trình lắp đặt mặt bằng phòng xông hơi đúng chuẩn

Phòng xông hơi là một không gian thư giãn, làm đẹp và chăm sóc sức khỏe hiệu quả. Để có được một phòng xông hơi đúng chuẩn, cần phải tuân theo một quy trình lắp đặt chuyên nghiệp và chính xác. Quy trình lắp đặt mặt bằng phòng xông hơi đúng chuẩn gồm có các bước sau:
- Tiếp nhận yêu cầu và ý tưởng xây dựng của khách hàng: Đây là bước đầu tiên và quan trọng nhất trong quy trình lắp đặt phòng xông hơi. Nhà thầu sẽ tiếp nhận yêu cầu về kích thước, vị trí, kiểu dáng, chất liệu, thiết bị và các yếu tố khác của phòng xông hơi từ khách hàng. Nhà thầu cũng sẽ tư vấn và đưa ra các ý tưởng xây dựng phù hợp với nhu cầu và ngân sách của khách hàng.
- Khảo sát thực địa mặt bằng phòng xông hơi: Sau khi có được yêu cầu và ý tưởng xây dựng của khách hàng, nhà thầu sẽ tiến hành khảo sát thực địa mặt bằng phòng xông hơi. Bước này nhằm đo đạc, kiểm tra và đánh giá các điều kiện về kỹ thuật, điện, nước, thông gió, cách âm, cách nhiệt và các yếu tố khác ảnh hưởng đến việc lắp đặt phòng xông hơi.
- Thiết kế phòng xông hơi chi tiết: Dựa trên kết quả khảo sát thực địa và yêu cầu, ý tưởng của khách hàng, nhà thầu sẽ thiết kế phòng xông hơi chi tiết. Thiết kế phòng xông hơi chi tiết bao gồm bản vẽ, bảng tính, danh mục thiết bị, vật liệu, công năng, màu sắc, hình ảnh 3D và các thông số kỹ thuật khác của phòng xông hơi. Thiết kế phòng xông hơi chi tiết sẽ được gửi cho khách hàng để xem xét và phê duyệt trước khi tiến hành báo giá và thi công.
- Báo giá phòng xông hơi: Sau khi có được sự đồng ý của khách hàng về thiết kế phòng xông hơi chi tiết, nhà thầu sẽ báo giá phòng xông hơi. Báo giá phòng xông hơi bao gồm chi phí vật liệu, thiết bị, nhân công, vận chuyển, lắp đặt, bảo hành và bảo trì của phòng xông hơi. Báo giá phòng xông hơi sẽ được gửi cho khách hàng để xem xét và đàm phán trước khi ký hợp đồng và tiến hành thi công.
- Thi công phòng xông hơi: Sau khi ký hợp đồng và nhận được thanh toán đặt cọc của khách hàng, nhà thầu sẽ tiến hành thi công phòng xông hơi. Thi công phòng xông hơi bao gồm các công đoạn như: chuẩn bị mặt bằng, lắp đặt cơ sở hạ tầng, lắp đặt khung, vách, cửa, sàn, trần, lắp đặt thiết bị, vật liệu, lắp đặt hệ thống điện, nước, thông gió, cách âm, cách nhiệt, hoàn thiện và trang trí phòng xông hơi. Thi công phòng xông hơi sẽ được thực hiện theo thiết kế phòng xông hơi chi tiết đã được phê duyệt và tuân thủ các quy chuẩn kỹ thuật và an toàn lao động.
- Vệ sinh phòng xông hơi và kiểm tra, chạy thử: Sau khi hoàn thành thi công phòng xông hơi, nhà thầu sẽ tiến hành vệ sinh phòng xông hơi và kiểm tra, chạy thử các thiết bị, hệ thống và chức năng của phòng xông hơi. Bước này nhằm đảm bảo phòng xông hơi hoạt động ổn định, hiệu quả và an toàn cho người sử dụng.
- Hướng dẫn, bàn giao và nghiệm thu phòng xông hơi: Sau khi vệ sinh phòng xông hơi và kiểm tra, chạy thử thành công, nhà thầu sẽ tiến hành hướng dẫn, bàn giao và nghiệm thu phòng xông hơi cho khách hàng. Bước này bao gồm việc hướng dẫn khách hàng cách sử dụng, bảo quản, bảo dưỡng và khắc phục sự cố của phòng xông hơi, bàn giao các giấy tờ, hóa đơn, biên bản, bảo hành và bảo trì của phòng xông hơi, nghiệm thu chất lượng, tính năng và hình thức của phòng xông hơi, nhận thanh toán nốt của khách hàng và kết thúc hợp đồng.
Hi vọng bài viết trên sẽ cung cấp cho bạn các bản cad phòng xông hơi chi tiết cho bạn tham khảo

 
  

